
Просторные апартаменты с тремя спальнями в самом сердце Луштицы Бэй
Описание объекта
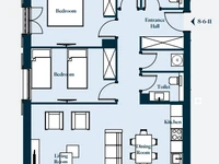
Современные апартаменты площадью 108 м², расположенные на втором этаже в оживленном центре, представляют собой идеальное сочетание функциональности и утонченного стиля. Благодаря продуманной планировке и высококачественной отделке, объект подходит как для постоянного проживания, так и для премиального отдыха.
Основные характеристики планировки:
-
Дневная зона: Светлая гостиная открытого плана, объединенная с обеденной зоной и кухней. Панорамное остекление наполняет пространство светом и ведет на просторную террасу — идеальное место для утреннего кофе или вечернего отдыха.
-
Мастер-зона и спальни: Три уютные спальни с эргономичными встроенными шкафами от пола до потолка.
-
Удобства: Три современно оборудованных санузла с подогревом пола, обеспечивающим комфорт в любое время года.
-
Хозяйственный блок: Отдельное помещение для прачечной, что позволяет грамотно организовать быт и сохранить эстетику жилых зон.
Технологии и интерьерные решения
Апартаменты предлагаются с полной меблировкой, выполненной по индивидуальному заказу, что позволяет заехать сразу после покупки.
-
Кухня: Немецкие кухонные системы со встроенной техникой последнего поколения.
-
Климат-контроль: Инновационная система кондиционирования без прямых потоков воздуха («wind-free») для поддержания идеальной температуры.
-
Безопасность: Автоматизированная система доступа с видеосвязью.
-
Хранение: Дополнительные внутренние ниши и системы хранения для поддержания порядка в доме.
Преимущества расположения
Живя в этих апартаментах, вы находитесь в эпицентре городской жизни курорта. В шаговой доступности расположены площади, магазины, рестораны и спортивные центры, при этом архитектура зданий обеспечивает приватность и тишину, свойственную возвышенностям.
Ваш новый дом на побережье — это сочетание средиземноморского спокойствия и современного городского комфорта.
Характеристики объекта
Удобства
Премиальные альтернативы

Квартира 57 м2 с панорамным видом на море в резиденции с бассейном
Полуостров Луштица, Черногории

Квартира с одной спальней и собственным двориком
Полуостров Луштица, Черногории

Премиальные апартаменты с видом на море и марину
Полуостров Луштица, Черногории

Изысканные апартаменты с видом на гольф-поля и море
Полуостров Луштица, Черногории

Современная двухкомнатная квартира в сердце Тивата
Тиват, Черногории

Современные апартаменты в закрытом комплексе в Кумборе
Херцег-Нови, Черногории
























