
Вилла 275 м2 на вершине первого гольф-курорта Черногории
Описание объекта
Представьте себе жизнь на самой высокой точке побережья, где каждое утро начинается с захватывающего вида на открытое море и живописный залив. Эта вилла расположена в самом престижном районе курорта, предлагая новый стандарт приватности в окружении нетронутой природы и профессиональных гольф-полей.
Архитектура и пространство
Концепция дома базируется на уважении к ландшафту. В отделке использованы благородные натуральные материалы: местный камень и дерево, которые в сочетании с современной архитектурой создают образ аутентичной, но технологичной средиземноморской резиденции.
-
Жилая площадь: 275 м² продуманного пространства.
-
Участок: 1375 м² личной территории с ландшафтным дизайном.
-
Паркинг: Гараж на два автомобиля.
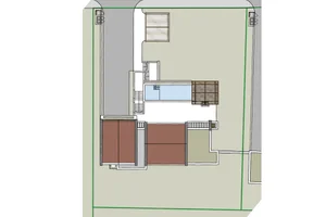
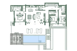
Планировка: Искусство жизни на одном уровне
Архитектурное решение виллы подчеркивает легкость и функциональность, разделяя пространство на зону обслуживания и роскошную жилую среду.
-
Подземный уровень: Просторный гараж на два автомобиля, техническое помещение и вместительная кладовая для хранения.
-
Основной жилой этаж — Территория света и комфорта: Сердце дома — это открытое пространство, объединяющее гостиную, современную кухню и обеденную зону. Панорамное остекление делает интерьер естественным продолжением ландшафта, открывая прямой выход на террасу. Здесь, под открытым небом, расположены инфинити-бассейн и полностью оборудованная летняя кухня.
-
Приватная зона: Вилла располагает тремя просторными спальнями, каждая из которых дополнена собственной ванной комнатой (en-suite), что гарантирует абсолютный комфорт для каждого члена семьи или гостей. Также предусмотрен отдельный гостевой санузел.
Эксклюзивное окружение
-
Профессиональный гольф: Вилла находится в непосредственной близости от 18-луночного поля мирового класса, спроектированного легендарным мастером.
-
Обзор 360°: Уникальное расположение на гребне холма гарантирует, что панорамные виды на водную гладь останутся неизменными.
-
Премиальный сервис: Владельцам доступна закрытая инфраструктура курорта: частные пляжи, марины для яхт, набережные с бутиками и рестораны высокой кухни.
Эта вилла — не просто недвижимость, а редкий коллекционный актив для тех, кто ценит тишину, высокий стиль и безупречный сервис.
Характеристики объекта
Удобства
Премиальные альтернативы

Эксклюзивная жизнь на вершине первого гольф-курорта Черногории
Полуостров Луштица, Черногории

Панорамная вилла 275 м² в первом гольф-сообществе Черногории
Полуостров Луштица, Черногории

Вилла 338 м2 на вершине первого гольф-курорта Черногории
Полуостров Луштица, Черногории

Просторная квартира с 2 спальнями в центре Тивата
Тиват, Черногории

Квартира 75 м2 в жилом комплексе Palace Bay, Доброта
Котор, Черногории

Эксклюзивное поместье в 100 метрах от моря, Жанице
Полуостров Луштица, Черногории








